Dès lors, il ne s’agit plus uniquement d’élever les murs et de fortifier les serrures des prisons, mais d’y faire pénétrer les influences salutaires […] de favoriser, dans l’enceinte même de la prison, tous les efforts qui peuvent relever le moral du condamné et le régime le plus capable de préparer son amendement [1].
L’architecture carcérale contemporaine est soumise à une forte standardisation, depuis les normes spatiales imposées en amont du projet par l’administration pénitentiaire et l’Agence publique pour l’immobilier de la justice (cahiers des charges prolixes imposant des normes drastiques) jusqu’aux matériaux mis en œuvre lors du chantier, la mainmise des grands groupes industriels, du béton notamment, participant à une uniformisation des techniques et des matériaux utilisés pour la construction des établissements. Si le phénomène s’est accru au XXe siècle, il n’est toutefois pas inédit.
Dans ce XIXe siècle où se forge la prison dite « moderne », différents types de discours, politiques [2], juridiques [3], ou issus du domaine médical [4] et architectural [5] concourent à arrêter des solutions spatiales générales, afin de punir et de corriger plus sûrement les criminels et les délinquants. D’autres typologies de bâtiments institutionnels – l’hôpital, par exemple (Laget et Laroche 2012) – voient aussi leur organisation spatiale profondément modifiée et rationalisée. Mais l’espace de la prison, du fait même de sa caractéristique première – celle d’organiser un lieu centripète et hermétique, hors de la société – est de manière exemplaire un programme investi par un ensemble de contraintes fortes, dans un spectre large – des objectifs sécuritaires à l’impératif économique. Si la première moitié du XIXe siècle voit se développer les prémices de théories pénitentiaires et architecturales qui envisagent une refonte générale et radicale de l’espace carcéral, couplée à un objectif de moralisation des détenus, à partir du milieu du siècle, l’internationalisation des débats pénitentiaires porte davantage sur la définition précise des espaces cellulaires, jugés essentiels à la réforme, rétrécissant dans le même temps le champ des expérimentations architecturales.
L’affirmation du rôle des architectes dans les théories pénitentiaires
Au cours du premier tiers du XIXe siècle, de nombreux projets de prison sont conçus qui entendent rompre avec l’Ancien Régime, au nom d’une pensée nouvelle de la pénalité. En effet, la prison d’Ancien Régime apparaît aux yeux des législateurs comme le lieu de la promiscuité, d’un mélange indu des catégories de détenus, fait d’injustice et d’arbitraire (Petit 1995). Les politiques révolutionnaires puis impériales modifient en profondeur le système judiciaire, notamment par sa réorganisation à l’échelle territoriale, conjuguée à l’ambition de punir grâce à une réforme des sanctions qui doivent remplacer les punitions royales considérées comme iniques [6]. Ce changement d’objectif pénal fait du recours à l’incarcération la peine principale.
Nombre de réflexions portent à la fois sur l’efficacité des modèles architecturaux en matière de gestion, mais également sur leur capacité à favoriser la correction des détenus. Les inspecteurs généraux des prisons Charles Lucas et Moreau-Christophe, Alexis de Tocqueville et Gustave de Beaumont, pour ne citer qu’eux, cherchent à définir les règles et les contours de la peine carcérale.
La dimension spatiale apparaît importante dans ces réflexions politiques visant à rationaliser le fonctionnement des prisons françaises mis au point alors, désigné dès la fin des années 1820 comme un « système pénitentiaire » [7]. Depuis l’entrée du détenu dans l’institution, jusqu’à sa sortie, la détention est méthodiquement pensée à chaque étape de la vie carcérale quotidienne – des règles architecturales de construction des établissements aux règlements intérieurs concernant le fonctionnement quotidien : visites, promenades, présence au culte, etc. Et ceci dans la durée : l’isolement est conseillé au début de la peine, et les recommandations portent en premier lieu sur l’observation des capacités et des défauts de chaque détenu, puis sur l’attribution d’un travail en cours de détention, enfin sur le placement à la sortie grâce à une œuvre de bienfaisance.
Les débats se concentrent alors autour de deux systèmes d’emprisonnement cellulaire mis en place dans les années 1820 : celui individuel et continu, selon le régime appliqué à la prison Cherry Hill à Philadelphie, et celui individuel de nuit mais commun de jour, mis en place à Auburn dans l’État de New York. L’idée s’impose que les architectes jouent, en matière carcérale, un rôle décisif. C’est ce que plaide notamment Moreau-Christophe, fervent défenseur du premier de ces deux modèles (le pennsylvannien) : « L’architecte de la prison est donc le premier exécuteur de la peine ; c’est le premier fabricant de l’instrument du supplice [8]. » L’architecte, donnant les fondements et la forme première de la peine par la construction d’un cadre bâti, est reconnu comme l’un des acteurs essentiels à la mise en œuvre du système pénitentiaire.
Dans le même temps, des recherches notables au sein du champ architectural prouvent l’implication de la profession dans la doctrine pénitentiaire, elle-même marquée par l’ambition de confronter différentes typologies, d’observer et d’intégrer les enseignements issus de réalisations étrangères. Elles montrent l’importance prise par la question, dont se saisissent des architectes majeurs du XIXe siècle [9]. Louis-Pierre Baltard publie ainsi en 1829 l’Architectonographie des prisons, qui regroupe des plans de réalisations françaises, dont certains de ses projets (figure 1), ainsi que des projets dits modèles (figure 2) et des exemples anglais, italiens (figure 3) ou encore hollandais. Le choix de présentation d’un plan, pour la majorité d’entre eux, révèle l’importance accordée à la typologie et à l’agencement général de chaque projet, ainsi qu’à l’étude et à la compilation de types divers. Quelques années plus tard le Projet de prison cellulaire pour 585 condamnés (1843), écrit par Guillaume Abel Blouet, suite à un voyage aux États-Unis consacré à l’étude des prisons [10], propose un modèle spatial unique, sur la base de la typologie rayonnante (figure 4). Cette disposition répond aux impératifs de séparation selon le système pennsylvanien (figure 5) dont il est l’un des partisans et dont il s’inspire, et où la surveillance des ailes est assurée grâce à l’espace central, qui fait office de poste d’observation pour le directeur et, au niveau supérieur, de chapelle (figure 6).
[Cliquez sur l’image pour l’agrandir]
Source : Louis-Pierre Baltard, Architectonographie des prisons, Paris, chez l’auteur, 1829, n. p.
[Cliquez sur l’image pour l’agrandir]
Source : Louis-Pierre Baltard, Architectonographie des prisons, Paris, chez l’auteur, 1829, n. p.
[Cliquez sur l’image pour l’agrandir]
Source : Louis-Pierre Baltard, Architectonographie des prisons, Paris, chez l’auteur, 1829, n. p.
Source : G.-A. Blouet, Projet de prison cellulaire pour 585 condamnés, Paris, Firmin Didot Frères, 1843, n. p.
Source : F. A. Demetz et G. A. Blouet, Rapports à M. le Comte de Montalivet, pair de France, ministre secrétaire d’État au département de l’Intérieur, sur les pénitenciers des États-Unis, Paris, Imprimerie royale, 1837 (Direction de l’administration pénitentiaire). Fonds Fontainebleau/École nationale de l’administration pénitentiaire (ENAP) – Centre de ressources sur l’histoire des crimes et des peines (CRHCP).
[Cliquez sur l’image pour l’agrandir]
Source : G.-A. Blouet, Projet de prison cellulaire pour 585 condamnés, Paris, Firmin Didot Frères, 1843, n. p.
Au sujet de l’importance de la profession architecturale dans la théorisation et la mise au point du système pénitentiaire, Blouet plaide ainsi au début de son Projet :
[...] je puis, en raison de ma spécialité, voir les choses sous leur double point de vue, d’abord, dans une certaine mesure, sous le rapport administratif qui en fait la base fondamentale, puis, sous celui de la construction qui s’y rattache si étroitement qu’on peut dire qu’elle en est l’expression. […] Un architecte peut, par des combinaisons bien entendues, faire admettre tel ou tel système d’emprisonnement que la théorie eût peut-être rangé au nombre des utopies [11].
Cette revendication sonne comme le vœu de ne pas voir ce programme échapper à la compétence de l’architecte, seul capable de dessiner et de mettre en œuvre des solutions spatiales sinon schématiques, voire irréelles, sous la plume des directeurs de prisons ou des magistrats.
L’encellulement individuel : facteur de moralisation ?
En France, la prison de Philadelphie est vue comme exemplaire par ses promoteurs, du fait de la moralisation individuelle que l’encellulement constant permettrait. C’est l’argument que formule Blouet : « les murs [y] sont la punition du crime ; la cellule met le détenu en présence de lui-même ; il est forcé d’entendre sa conscience ; […] » [12].
Quant aux autres experts pénitentiaires – hommes politiques, membres des administrations de prisons, magistrats, membres des sociétés savantes, avocats, universitaires, représentants des cultes, médecins, etc. – les modèles théoriques qu’ils forgent contribuent également à la confection des modèles théoriques pénitentiaires, inspirés notamment des solutions cellulaires américaines, et nourris à la fois d’échanges bilatéraux entre acteurs français d’une part, et de comparaisons entre pays occidentaux, d’autre part, étayées notamment par des voyages pénitentiaires. C’est en particulier autour de l’espace individualisé de la prison idéale que s’accordent la plupart des théories.
La cellule y apparaît non seulement comme le moyen de punir et d’isoler, mais aussi de moraliser par l’isolement individuel, en laissant le détenu face à sa conscience, et en empêchant la promiscuité. Les discours sont pléthores qui défendent alors la partition stricte des espaces pour éviter tout contact, source supposée d’augmentation de la criminalité, de sexualité interdite ou encore de diffusion des germes. La figure du détenu qui apparaît en filigrane dans ces théories adeptes d’une individualisation de l’espace est alors double : s’il est emprisonné pour la première fois, et vierge de l’expérience carcérale, il faut l’isoler pour que la punition atteigne son objectif par la solitude et par la visite de personnes à la moralité exemplaire. S’il est récidiviste, l’encellulement individuel doit permettre d’endiguer la transmission des vices aux autres détenus, et de rendre la punition plus redoutable.
Des théories aux pratiques
Mais pendant cette première partie du XIXe siècle, les décalages sont encore importants entre les théories et pratiques architecturales, comme les historiens de la prison l’ont souligné (Petit 1990). L’architecture et l’aménagement des prisons françaises ne changent pas au rythme des lois successives et des évolutions de la doctrine carcérale [13], chaque gouvernement évitant d’engager de trop grands frais dans la construction de nouvelles prisons, face à une opinion publique souvent hostile à la dépense.
La prison parisienne de la Petite Roquette, ouverte en 1836, fait figure d’exception : première réalisation concrète et à grande échelle des réformes pénitentiaires appliquées aux enfants (figure 7), conçue d’abord selon le système auburnien, puis rapidement adaptée au système pennsylvanien [14]. En 1850, seules quelques prisons (Mazas à Paris, Tours, Angers) renferment un dixième de la population pénale selon la norme cellulaire, et ces établissements ne sont plus considérés comme exemplaires sous le second Empire, hostile au système pennsylvanien et partisan d’un enfermement par catégories distinctes de détenus.
Source : Fonds Fontainebleau/ENAP–CRHCP.
L’internationalisation des débats
Au milieu du XIXe siècle, un changement d’échelle notable s’opère dans les réflexions sur la prison. Les premiers congrès pénitentiaires (Francfort 1846, Bruxelles 1847) sont un épisode majeur dans la mise en commun des doctrines occidentales favorables à la punition par l’enfermement cellulaire. La réunion des experts de plusieurs pays d’Europe de l’Ouest, du Nord et des États-Unis (figure 8) marque le début d’un consensus autour de la théorisation d’espaces carcéraux performants, et de la catégorisation des délinquants et des criminels qui accompagne la définition des façons adéquates de punir.
[Cliquez sur l’image pour l’agrandir]
Source : Elsa Besson.
Les deux premiers congrès dessinent à grands traits les contours de l’espace carcéral idéal, et sont organisés à l’initiative de quelques spécialistes, acteurs essentiels des débats pénitentiaires dans leurs pays respectifs [15]. Les discours se concentrent sur la traduction spatiale de la séparation des corps des détenus. L’individualisation de l’exécution de la peine à l’intérieur des catégories essentielles de la pénalité moderne (enfants séparés des adultes, femmes des hommes, prévenus des condamnés) figure la base de la partition de la prison « moderne », et concrétise des visées à la fois hygiénistes, sécuritaires, morales et religieuses.
La chapelle cellulaire, par exemple, objet de controverse lors de ces premiers congrès, n’en constitue pas moins un point central car elle incarne le lieu de la moralisation par excellence au sein de l’espace carcéral, en permettant la répartition individuelle des détenus dans des stalles en bois. L’application stricte de l’encellulement individuel, acceptée à une immense majorité à Francfort en 1846, permet au congrès de Bruxelles de statuer l’année suivante sur les questions spatiales résultant de ce choix. Ce n’est pas tant à propos des réglages et des questions matériels, de la mise en œuvre et la fabrication concrète de l’architecture carcérale que s’interrogent les premiers congrès et se posent les questions au plan international, mais du côté théorique, du côté des orientations générales qui doivent fonder l’espace nouveau de la prison. La recherche d’une unité transnationale des règles spatiales est alors concomitante de l’acception commune, dans une grande partie de l’Occident, du droit de punir par la prison.
L’encellulement individuel reconnu comme norme unique
Au fil des réunions d’experts – lors des congrès pénitentiaires, devenus officiellement internationaux [16], et des débats qui animent les cercles d’acteurs français sous la IIIe République – la systématisation du recours et de l’usage de la cellule se précise, sous l’impulsion du nouveau régime politique. À la suite de la loi du 5 juin 1875 imposant définitivement l’encellulement individuel, la Société générale des prisons (SGP) [17] rejette tout modèle d’enfermement mixte, impliquant des contacts entre détenus, à rebours des décisions prises sous le Second Empire. La Belgique fait régulièrement figure d’exemple dans les colonnes de son bulletin, pour son système cellulaire qui, depuis le milieu du siècle, a poussé l’isolement jusqu’à imposer le port du capuchon aux détenus, ultime rempart contre toute possibilité de reconnaissance et de communication entre eux hors de leur cellule. Les différents réseaux, internationaux et nationaux, encouragent au partitionnement de plus en plus précis des espaces – comme en témoigne la présentation de la prison de Fresnes au congrès de Paris en 1895, louée également dans le bulletin de la SGP, la Revue pénitentiaire [18].
Les autres espaces de la détention négligés
Les congrès pénitentiaires internationaux travaillent à rendre plus précises certaines dispositions spatiales, mais laissent flous nombre des lieux nécessaires au fonctionnement de la prison. Si la cellule est dûment mesurée, dessinée dans ses moindres détails et similaire d’un pays à l’autre, si la place de la chapelle et ses dispositions cellulaires sont vivement débattues par des acteurs convaincus d’une rédemption possible des délinquants et des criminels par la religion, sont laissés dans l’ombre aussi bien les espaces de circulations et de travail, que les espaces administratifs et techniques.
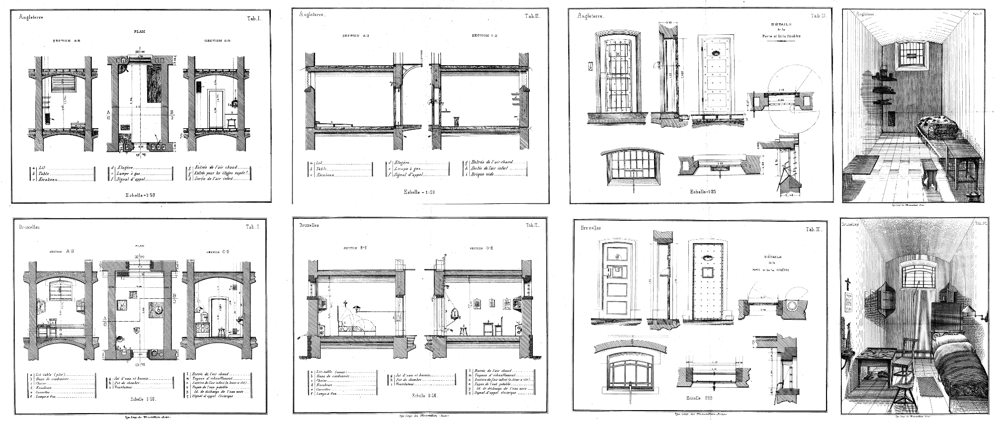
Dans les textes, l’architecture carcérale fait bien l’objet d’une uniformisation, mais qui vise les lieux de punition à proprement parler, ceux qui réalisent l’isolement strict des corps : cellules en premier lieu, mais aussi bains, promenades, parloirs, ateliers (figure 9). À la fin du XIXe siècle, les espaces qui ne sont pas marqués par le projet cellulaire punitif sont quasiment absents des textes des congrès : ils ne sont pas considérés comme des lieux où les normes portées par les théories pénitentiaires transnationales doivent triompher.
[Cliquez sur l’image pour l’agrandir] Lors de l’exposition pénitentiaire qui se tient en marge du congrès de Rome en 1885, la maquette grandeur nature d’une cellule type de chaque pays participant est présentée pour donner à voir, et surtout à comparer, la disposition exacte du mobilier, les systèmes de serrurerie permettant la fermeture des portes et des fenêtres, les dimensions de chaque élément, etc.
Source : Fonds Fontainebleau/ENAP–CRHCP.
Il s’agit donc d’une théorisation partielle de l’espace carcéral ; l’intérêt des acteurs du champ pénitentiaire se concentre autour du thème de la séparation. L’obsession du morcellement est manifeste, et s’accompagne de l’impératif d’économie maximale des projets architecturaux. Elle ne met pas en place un programme d’architecture d’ensemble, qui seul pourrait organiser une punition qui dépasserait l’ambition de la seule séparation individuelle. Pour autant, l’application du système cellulaire à chaque détenu reste l’horizon hors d’atteinte des politiques pénitentiaires françaises de la fin du XIXe siècle, du fait d’une surpopulation récurrente des prisons départementales – anciennes maisons d’arrêt – chargées d’accueillir les prévenus et les condamnés à de courtes peines.
Le rôle prééminent accordé par les théoriciens du XIXe siècle à la cellule tenait au fait qu’elle constituait un lieu d’isolement et de séparation clé, et se voyait par conséquent placée au fondement de la prison dite moderne. Ces dispositions ont perdu le sens correctif et moral que lui accordait le XIXe siècle. La situation contemporaine est marquée par l’inapplication réitérée de l’enfermement individuel en maisons d’arrêt. Cette individualisation de l’espace carcéral aujourd’hui réclamée par les observateurs extérieurs, comme le Contrôleur général des lieux de privation de liberté, a changé de statut : c’est au respect du droit et de la dignité des détenus que l’on en appelle, et à la création d’espaces collectifs plus importants, pour ne pas faire de la durée de l’incarcération un temps suspendu et pauvre en activités, destructeur de tous liens sociaux et familiaux.
Bibliographie
- Laget, P.-L. et Laroche, C. (dir.). 2012. L’Hôpital en France. Histoire et architecture, Lyon : Lieux Dits.
- Petit, J.-G. 1990. Ces peines obscures. La prison pénale en France 1780‑1875, Paris : Fayard.
- Petit, J.-G. 1995. « Obscurité des Lumières : les prisons d’Europe, d’après John Howard, autour de 1780 », Criminologie, vol. 28, n° 1, p. 5‑22.






























