Skip to main content
Terrains

La place des familles : une reconnaissance en demi-teinte

La prison peut-elle se faire hospitalière ? Lieu de vie des détenus, elle doit aussi accueillir les proches. L’enquête de Jennifer Yeghicheyan sur les équipements qui leur sont dédiés montre que, à côté d’une reconnaissance de principe de leur rôle, l’instauration d’une véritable place au sein du dispositif carcéral reste à réaliser. En l’état, cet accueil relève davantage de la tolérance que de la reconnaissance d’un droit, comme en témoigne la récente délégation de gestion des « accueils de famille » à des prestataires privés.

Dossier : Architecture carcérale et sens de la peine : formes et usages contemporains de la prison


Dans le milieu carcéral, la place des proches des détenus – parents, enfants, conjoints ou amis – renvoie à l’enjeu du maintien des liens familiaux, qui compte parmi les 108 règles pénitentiaires européennes et figure au rang des objectifs prioritaires de l’administration pénitentiaire française [1]. Des travaux de recherche se sont penchés sur l’expérience indirecte de l’incarcération que vivent ces individus (Touraut 2012), ainsi que sur la nature des liens qu’ils entretiennent ou non avec les détenus (Ricordeau 2009). Certaines études ont analysé les parloirs (Ricordeau 2012 ; Cardon 2002) ou leurs variantes plus récentes, notamment les unités de vie familiales (UVF) [2] (Rambourg 2006 ; Lancelevée 2011). Un autre dispositif destiné aux proches a fait l’objet d’une attention moindre : l’« accueil des familles ».

Les « accueils des familles » sont des lieux situés avant l’entrée principale des prisons, à leur périphérie immédiate. Animés par des associations de bénévoles, ces espaces ont pour vocation de fournir des renseignements à celles et ceux qui se rendent aux visites au parloir, mais aussi une écoute, une présence qui se propose d’être réconfortante. Le développement de ces accueils en France est venu répondre à l’indignation provoquée par l’attente des visiteurs devant les prisons, au gré des intempéries et sans aucun aménagement, définie progressivement comme « intolérable » (Bourdelais et Fassin 2005). À la faveur d’initiatives locales, des associations voient le jour dès 1982 et animent des espaces d’attente et de soutien. Au début des années 1990, l’administration pénitentiaire engage un plan de construction de 13 000 places de prison. Les associations saisissent cette occasion pour faire reconnaître les besoins des proches des détenus en engageant des négociations au niveau national avec l’administration pénitentiaire. La création systématique d’un local d’accueil pour celles et ceux que l’on nomme les « familles [3] » est obtenue pour chaque nouvelle construction de prison.

Dans les nouvelles prisons du « programme 13 000 » et des programmes qui suivront, les murs de ces locaux d’accueil appartiennent donc à l’administration pénitentiaire, mais ce sont les associations qui les investissent. Une convention tripartite est alors signée entre l’association, la direction de l’établissement et le service pénitentiaire d’insertion et de probation (SPIP). Dans les prisons plus anciennes où cet espace dédié aux familles n’est pas prévu, les associations louent un local à proximité et en sont entièrement responsables. En 1990, il existe une trentaine de « maisons d’accueil » (les bénévoles dénomment ainsi leur structure). En 2017, sur les 182 établissements pénitentiaires que compte le territoire français, 154 disposent d’un accueil associatif, soit plus de 80 % d’entre eux.

En 2010, la Direction de l’administration pénitentiaire (DAP) bouleverse la donne en confiant l’accueil des familles à des sociétés prestataires. Ces entreprises privées œuvrent déjà depuis 1990 dans les prisons dites « à gestion déléguée » ou « gestion mixte » [4], où elles assurent la cuisine, la buanderie, le nettoyage, la maintenance, la formation et le travail des personnes détenues ainsi que la santé. Dans le cas de l’accueil des familles, le recours à ces sociétés de service est justifié par la nécessité de « systématiser » et de « professionnaliser » [5] l’accueil. Ainsi, des « chargés d’accueil », salariés et recrutés par l’entreprise prestataire, interviennent dans les lieux d’accueil des familles à partir de 2010 dans les prisons à gestion déléguée [6]. Les associations, mises devant le fait accompli, n’entendent pas se retirer pour autant : s’ensuit une cohabitation entre associations et entreprises. Quelle place l’institution pénitentiaire fait-elle désormais aux associations dans les accueils ? Quelles conséquences le partenariat avec des sociétés prestataires a-t-il sur les proches des détenus ?

L’étude de cas du lieu d’accueil de la maison d’arrêt de Villeneuve-lès-Maguelone (Hérault) [7] montre l’ambivalence qui caractérise ces espaces, et la tension qui s’y joue, entre volonté de contrôle par l’administration pénitentiaire et reconnaissance d’une nécessaire présence et d’une relative indépendance des associations, tension qui questionne la manière dont sont reconnus les proches des détenus. L’évolution architecturale de l’accueil de Villeneuve-lès-Maguelone, de ses débuts à l’arrivée des prestataires, matérialise la transformation des rapports de force entre l’association et l’administration pénitentiaire et permet d’analyser la manière dont sont reconnus les proches des détenus par ces deux institutions.

De l’abri à l’accueil : négociations associatives pour prendre place


La maison d’arrêt de Villeneuve-lès-Maguelone ouvre en mars 1990 [8] en pleine garrigue, très éloignée du centre du village. Il faut plus d’une heure en transport en commun et une demi-heure en voiture pour raccorder la gare de Montpellier, la grande ville la plus proche. Le local d’accueil des visiteurs au parloir est construit au sein du bâtiment d’entrée de la prison, dans le prolongement du mur d’enceinte. C’est une salle avec des bancs fixés à même le sol en béton brut, dans laquelle un surveillant est présent.

Figure 1. Plan-masse de la maison d’arrêt. L’accueil est situé au niveau de la porte d’entrée, à gauche. On remarque sa position liminale entre l’intérieur et l’extérieur de la prison [9]

Source : Jennifer Yeghicheyan.

Figure 2. Plan-masse de l’accueil à l’ouverture (avant l’agrandissement du bureau des surveillants et les travaux réalisés par l’association) ; les termes sont ceux utilisés à l’époque

Source : Jennifer Yeghicheyan.

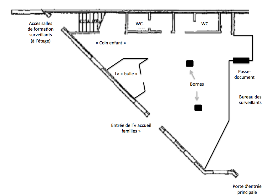
D’après les archives de l’association, nommée Aviso, celle-ci intervient dans le local d’attente réservé aux familles dès 1991. À cette date, seul le placard à balais est à la disposition des 14 bénévoles qui accueillent les familles les mercredis et samedis pour déposer leurs affaires. Quelques mois plus tard, des travaux, entrepris afin de permettre aux surveillants en charge du contrôle du portique de sécurité d’avoir un accès à la lumière du jour, ont pour conséquence de réduire l’espace d’accueil. En outre, le surveillant de l’accueil rejoint ses collègues du portique : il déménage dans un bureau vitré à mi-hauteur, et devient invisible grâce à des films sans tain posés sur les vitres. L’interaction avec les surveillants depuis l’accueil n’est désormais possible qu’à travers un passe-document. Malgré la demande des bénévoles, la direction de l’établissement ne veut pas agrandir le local et compenser la perte d’espace d’accueil, pour des raisons de sécurité [10]. Un compromis est finalement trouvé et des travaux, financés par l’association, commencent. Il s’agit de rendre cet espace plus chaleureux : un carrelage est posé sur le béton brut, les bancs sont déboulonnés du sol. Progressivement, les bénévoles aménagent un coin destiné aux enfants avec des jouets et un tableau noir, décorent l’intérieur du lieu par l’accrochage de tableaux colorés rapportés d’un voyage par l’une d’entre eux. Mais ils s’approprient réellement le lieu lorsqu’ils en modifient plus nettement encore l’architecture intérieure, en faisant construire un bureau vitré en son centre. Cet espace, appelé par les accueillants « la bulle », est dédié à des échanges plus confidentiels avec les proches qui le désireraient. Les bénévoles entendent ainsi offrir une écoute bienveillante et personnalisée.

La nature de l’intervention d’Aviso évolue peu à peu. À l’ouverture de la prison, les accueillants proposent uniquement une « simple présence d’hommes et de femmes compatissants » [11], une écoute face à ce qu’ils identifient comme la « souffrance des familles » tout en garantissant une confidentialité des échanges. Ils n’ont pas vocation à divulguer la moindre information à l’administration pénitentiaire. Ce faisant, ils s’inscrivent à distance, voire à rebours, de la logique pénitentiaire selon laquelle l’information constitue la base du contrôle et de la prévention des risques, dans une organisation où la sécurité est un enjeu majeur (Chauvenet et al. 1994). Au fil du temps, l’effectif des bénévoles s’agrandit ainsi que le nombre de plages horaires sur lesquelles ils interviennent. En plus de l’écoute, les accueillants élargissent leurs actions en aidant à la vérification des sacs de linge qu’apportent les proches aux détenus. Deux bornes destinées à la prise de rendez-vous aux parloirs (identiques dans toutes les prisons de France) sont installées dans le local : les bénévoles sont sollicités pour accompagner les proches dans l’utilisation de ces appareils. Par ces aménagements et leur investissement, les bénévoles transforment ce qui n’était initialement qu’un simple abri en véritable accueil.

Figure 3. Plan-masse de la salle d’accueil avant l’arrivée des prestataires et après les premiers travaux réalisés par l’association

Source : Jennifer Yeghicheyan.

Pour autant, les bénévoles ne sont pas maîtres des lieux. L’accueil reste la propriété de l’administration pénitentiaire et la convention tripartite qui régit l’intervention de l’association doit être renouvelée tous les ans. Ce renouvellement apparaît comme une formalité grâce à la bonne entente entre Aviso et la direction de l’établissement. Néanmoins, il est rappelé que leur intervention est seulement « tolérée » et qu’elle ne constitue pas un droit. C’est ainsi que, malgré les protestations des bénévoles, une caméra de surveillance est installée dans le local d’accueil. Pour les membres d’Aviso, cet instrument de contrôle va à l’encontre du climat de confiance qu’ils souhaitent établir.

Les rapports de pouvoir entre association et administration pénitentiaire sont éminemment favorables à cette dernière. L’accueil représente uniquement pour l’institution pénitentiaire un moyen de faciliter les visites avec les détenus. Pour les bénévoles, s’ils aident à certaines formalités en vue du parloir (vérification des sacs de linge, aide à la prise de rendez-vous), il s’agit surtout de prendre en considération la souffrance des proches due à l’incarcération. L’espace d’accueil constitue dès lors un carrefour croisant des logiques, pénitentiaire et associative, distinctes voire concurrentes. Quand l’une souhaite contrôler au maximum, l’autre introduit une « bulle » destinée à garantir la dimension privée de la vie des proches. Quelles sont, dès lors, les conséquences introduites par l’arrivée des prestataires sur cette tension entre indépendance et contrôle, entre considération humanitaire et considération gestionnaire, au sein des espaces d’accueil ?

De l’accueil au service d’accueil : un processus de marchandisation


Dans les prisons à gestion déléguée, rappelons que des agents d’accueil professionnels assurent ce service aux côtés des bénévoles depuis 2010. À Villeneuve-lès-Maguelone, les membres d’Aviso apprennent la nouvelle le 23 décembre 2009 pour une mise en place au 2 janvier 2010. Encore une fois, l’association n’a pas d’autre choix que d’accepter. La direction de l’établissement impose les prestataires et ce jour est marqué par de vives tensions. Des bénévoles viennent spécialement barrer l’accès à la « bulle ». Les employés de la société prestataire, dont trois sur cinq sont d’anciens bénévoles [12], s’insurgent contre ce qu’ils qualifient d’« enfantillage ». La traditionnelle réunion de la galette en début d’année est la première manifestation qui rassemble la majorité des bénévoles et pour la première fois ces accueillants d’un genre nouveau. Les crispations se font sentir. Spatialement, l’association entend garder le contrôle : les salariés ne disposent que d’une table, en dehors de la bulle. Toutefois, quelques mois plus tard, des travaux de rénovation inscrivent la nouvelle configuration organisationnelle dans l’espace, donnant la place principale à la société prestataire. L’association doit se plier à cette décision que certains bénévoles ne comprennent pas. Selon eux, le matériel n’est pas abîmé et n’a donc pas besoin d’être remplacé. Ils n’envisagent d’aucune façon un partage de l’espace avec les prestataires. La bulle est détruite, deux bureaux viennent la remplacer : l’un pour le prestataire, et l’autre, plus en retrait, pour Aviso. La création d’un bureau pour l’association est une « faveur » accordée par le directeur de l’entreprise, et non une obligation faite à la société prestataire.

Figure 4. Plan-masse de la salle d’accueil une fois les travaux réalisés par la société prestataire

Source : Jennifer Yeghicheyan.

Les bénévoles assistent également, impuissants, à l’évolution de la décoration et de l’aménagement du lieu : les tableaux sont décrochés, les murs repeints aux couleurs de l’entreprise. Le prestataire souhaite, à terme, uniformiser l’ensemble des accueils dont il a la charge sur le territoire français. Ainsi, les proches amenés à se déplacer entre plusieurs prisons en fonction des transferts ou de nouvelles incarcérations retrouveront des lieux familiers. Le mobilier est conservé en partie (les tables et les chaises), mais une table haute avec deux tabourets de bar vient rappeler les espaces d’attente des gares ou des aéroports. Un salon constitué de deux canapés en mousse renvoie, quant à lui, aux espaces détente de ces lieux transitoires. Les meubles sont choisis parmi un catalogue défini par l’entreprise et les couleurs sont en accord avec la bannière de la société prestataire. En plus des notices d’information pénitentiaire, des affiches colorées annoncent des animations à l’accueil. On y voit des enfants maquillés et souriants à la manière des offres de loisirs pour enfants. Les thématiques (la saison automnale, la cuisine, etc.) sont choisies au niveau national, et chaque équipe locale les adapte [13]. Les seules réalisations personnelles accrochées au mur sont désormais celles des enfants. Cette standardisation de l’aménagement ne laisse plus de place à l’expression d’individus singuliers.

D’ailleurs, l’accueil devient un service. Pour les prestataires, ce ne sont plus tant les relations interpersonnelles, basées sur l’écoute et la confiance, qu’un cahier des charges assez impersonnel et relatif au bon déroulement des parloirs qui importe : liste des affaires autorisées, formulaires pour l’obtention d’un permis de visite, etc. Le style, très professionnel, des agents d’accueil diffère fortement de celui des bénévoles. Ces personnels fournissent un service d’accueil au sens technique. Ils sont là pour faciliter les visites au parloir en fournissant les renseignements nécessaires aux familles, aider à la prise de rendez-vous, assurer l’affichage des notes émanant du service pénitentiaire. Ils n’ont pour vocation ni d’offrir une écoute confidentielle, ni d’être du côté des familles. Preuve en est que les employés sont tenus de rapporter toute information susceptible d’aider l’administration pénitentiaire.

Toutefois, certains accueillants refusent toute instrumentalisation de leur présence par les surveillants. Ainsi, il est arrivé qu’une surveillante demande à un agent d’accueil de regarder discrètement dans le sac d’une femme pour s’assurer qu’aucun objet illicite ne s’y trouve. Celui-ci a refusé net, invoquant son rôle de chargé d’accueil, distinct du métier de surveillant. De la même manière, les agents d’accueil s’autorisent l’écoute de confidences de la part des familles vis-à-vis desquelles ils peuvent garder le secret.

Il serait donc réducteur de ne voir dans ces prestataires qu’un avatar de l’administration pénitentiaire et de sa volonté de contrôle des espaces d’accueil. Mais l’on voit, cependant, quelle inflexion portent les mutations récentes des espaces d’accueil. L’institutionnalisation de ces espaces et l’investissement qui est consenti au titre de la place accordée aux proches vont de pair avec une reprise en main relative, par l’autorité pénitentiaire, d’espaces et de formes d’actions et d’entraide qui jusque-là lui échappaient. L’accueil marchandisé intègre désormais le panel des services à réaliser dans le cadre d’une relation client–fournisseur : une prestation générique, transposable à d’autres structures (ici un établissement pénitentiaire, là un établissement hospitalier ou scolaire) dont le but est de faciliter le service principal (ici les parloirs, là les soins ou la formation). Ce sont les mêmes processus d’introduction des référentiels marchands et gestionnaires identifiés pour le secteur médico-social (Chauvière 2007). Les proches ne sont pas un groupe partageant l’expérience de situations problématiques et susceptible de s’auto-organiser, pour penser cette expérience, s’entraider, voire se mobiliser. Ce sont seulement des usagers, dont la seule possibilité de faire entendre leur voix passe par le remplissage de questionnaires de satisfaction.

Bibliographie

  • Bourdelais, P. et Fassin, D. 2005. Les Constructions de l’intolérable. Études d’anthropologie et d’histoire sur les frontières de l’espace moral, Paris : La Découverte.
  • Cardon, C. 2002. « Relations conjugales en situation carcérale », Ethnologie française, vol. 32, n° 1, p. 81‑88.
  • Chauvenet, A., Orlic, F. et Benguigui, G. 1994. Le Monde des surveillants de prison, Paris : Presses universitaires de France.
  • Chauvière, M. 2007. Trop de gestion tue le social. Essai sur une discrète « chalandisation », Paris : La Découverte.
  • Direction de l’administration pénitentiaire (DAP). 2017. Bilan et perspectives de la gestion déléguée. 2016-2017, Paris : DAP, sous-direction Pilotage et Sécurité, Bureau de la gestion déléguée (PS6).
  • Lancelevée, C. 2011. « Une sexualité à l’étroit. Les unités de visite familiale et la réorganisation carcérale de l’intime », Sociétés contemporaines, n° 83, p. 107‑130.
  • Rambourg, C. 2006. Les Unités de visites familiales. Nouvelles pratiques, nouveaux liens, Agen : École nationale d’administration pénitentiaire (ENAP) – Centre interdisciplinaire de recherche appliquée au champ pénitentiaire (CIRAP).
  • Ricordeau, G. 2012. « Entre dedans et dehors : les parloirs », Politix, n° 97, p. 101‑123.
  • Ricordeau, G. 2009. Les Détenus et leurs proches : solidarités et sentiments à l’ombre des murs, Paris : Autrement.
  • Salle, G. 2012. « La privatisation de la gestion pénitentiaire », in R. Bodin (dir.), Les Métamorphoses du contrôle social, Paris : La Dispute, p. 89‑101.
  • Solini, L. 2018 (à paraître). « La carcéralité a-t-elle des principes ? », in L. Solini, J. Yeghicheyan et S. Ferez (dir.), La Prison par ses lieux, Paris : Éditions de la Sorbonne.
  • Solini, L., Scheer, D. et Yeghicheyan, J. 2016. « “Une fenêtre ouverte sur l’extérieur ?” Écologie de deux espaces carcéraux », Sociologie, vol. 7, n° 3, p. 225‑242.
  • Touraut, C. 2012. La Famille à l’épreuve de la prison, Paris : Presses universitaires de France.
  • Yeghicheyan, J. 2015. Accueillir et contenir : les « familles » entre bénévolat et marché. Enquête sur une périphérie carcérale, thèse d’ethnologie sous la direction de Gaetano Ciarcia, université Montpellier‑3.

Make a donation

Support Metropolitics!

Donate

To cite this article:

, « La place des familles : une reconnaissance en demi-teinte », Metropolitics, 8 January 2018. URL : https://www.metropolitics.org/La-place-des-familles-une-reconnaissance-en-demi-teinte.html

See also

Other resources online

Newsletter

Subscribe to the newsletter

Subscribe

Submit a paper

Contact the editors

Submit a paper
Centre national de recherche scientifique (CNRS)
Journal supported by the Institut des Sciences Humaines et Sociales (Institute of Human and Social Sciences) of the French National Center for Scientific Research (CNRS)

Partners